Réf. 85760453
3 pièces
80.5 m²
393 000 €
EXCLUSIVITÉ/ LA CIOTAT
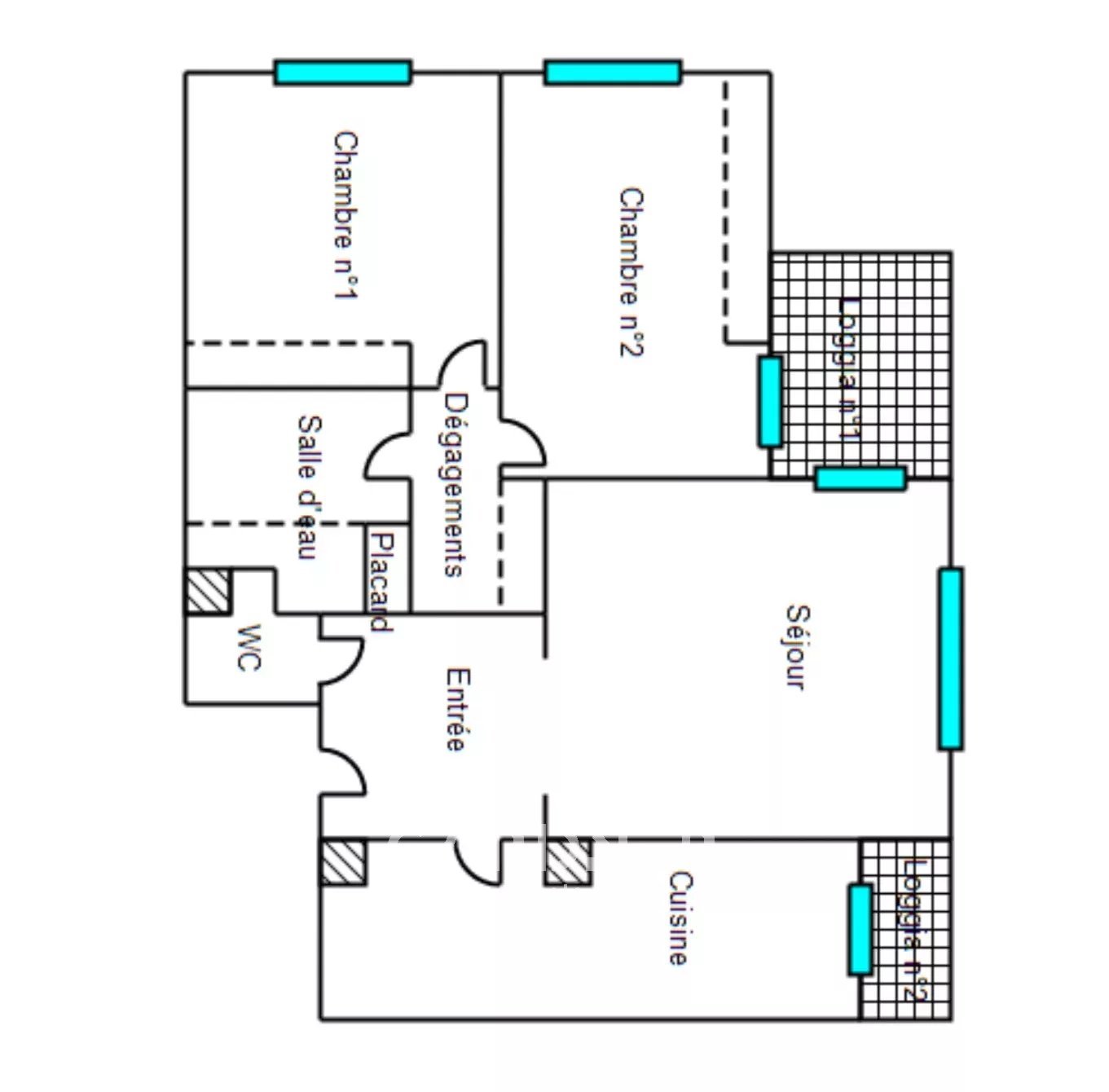
Dans une résidence fermée et sécurisée avec facilité de stationnement, découvrez cet appartement de type 3 de 73 m² CARREZ situé au premier étage sans ascenseur, dans un cadre calme et agréable disposant de 2 balcons.
Il se compose d’une entrée avec placard donnant sur un séjour avec balcon, d’une cuisine séparée avec balcon, d’un toilette, de deux placards dans le couloir, d’une salle d’eau avec placard, ainsi que de deux chambres avec placard. Une cave vient compléter le bien.
Les charges s’élèvent à environ 120 € par mois, incluant l’eau froide.
La taxe foncière est d’environ 920 € par an.
À proximité des commerces et de toutes les commodités, cet appartement permet de se déplacer librement à pied.
Pas d'informations disponibles
Pas d'informations disponibles
Pas d'informations disponibles

Ce site est protégé par reCAPTCHA et les règles de confidentialité et les conditions d'utilisation de Google s'appliquent.